Продажа 1-комнатной квартиры

41 м²
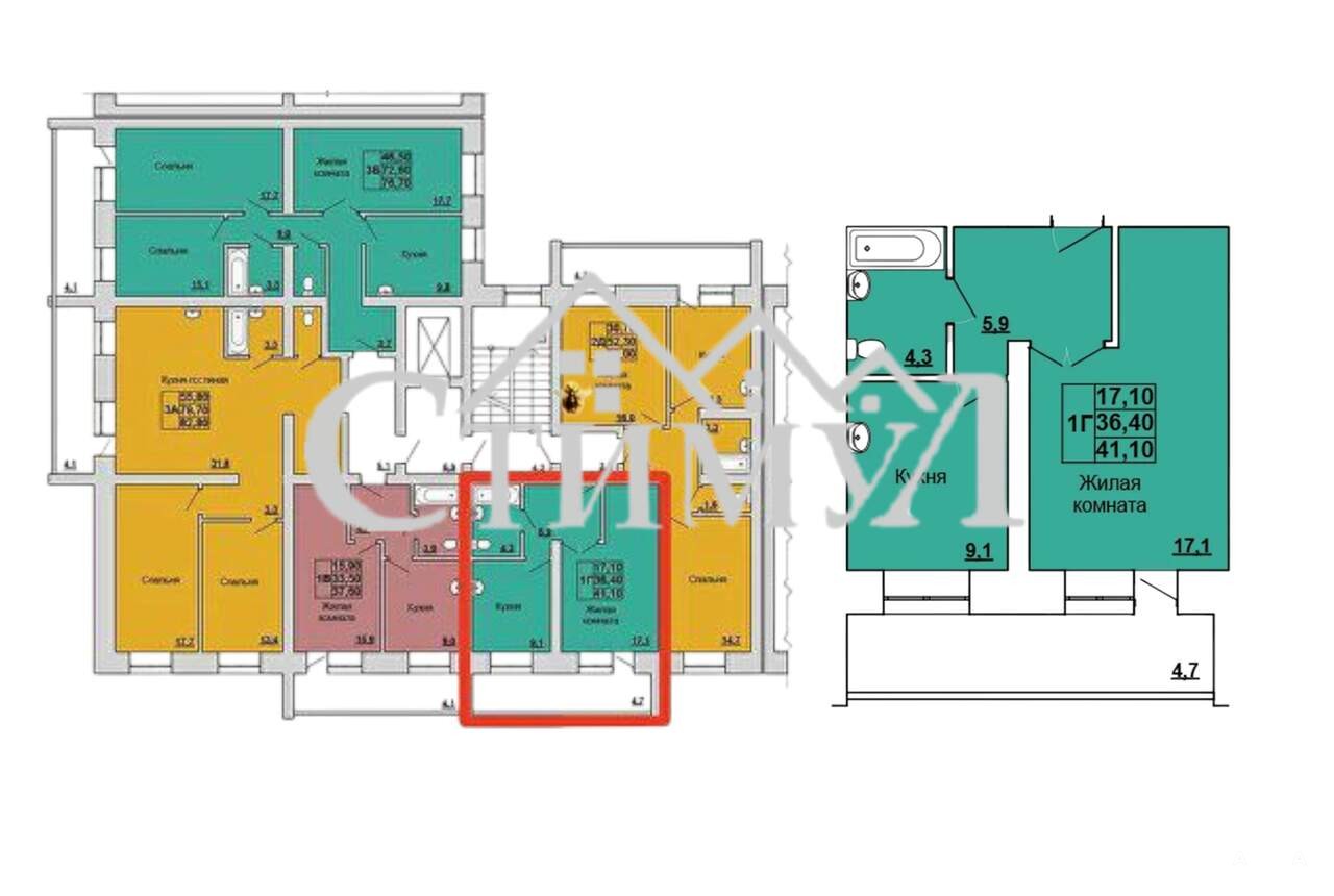
Площадь
30.4 м²
Жилая площадь
9.1 м²
Площадь кухни
2/7
Этаж

5 055 300 ₽

123 000 ₽ за м²

ID объявления 11981009

Поделиться

Добавить в избранное

Светлая однокомнатная квартира 41.1 м² с ремонтом под чистовую отделку в новостройке

Описание:

Откройте дверь в свою новую жизнь! В продаже уютная и невероятно светлая однокомнатная квартира в современной новостройке. Идеальное пространство для комфортной жизни одного человека или пары, где каждая деталь продумана для вашего удобства.

Ключевые преимущества квартиры:

· Готовность под вашу отделку: Все черновые работы уже завершены! Выполнена гидроизоляция пола в санузле, установлены входная дверь, розетки и сделана разводка под сантехнику. Вам осталось только воплотить свои дизайнерские идеи в жизнь, сэкономив время и силы на подготовке.
· Очень светлая: Все окна выходят на одну сторону, обеспечивая максимум естественного света. Пространство наполнено атмосферой уюта и вдохновения.
· Продуманная планировка: Функциональная зонирование позволяет с комфортом разместить все необходимое для жизни.
· Современные стандарты: При строительстве использованы качественные материалы и энергоэффективные технологии, что гарантирует безопасность, долговечность и низкие эксплуатационные расходы.

Перспективы и выгода:

Это не только ваш будущий уютный уголок, но и выгодная инвестиция. Район активно развивается, что гарантирует рост стоимости недвижимости в будущем.

Готовы посмотреть и сделать ее своей? Звоните, чтобы назначить просмотр!

Дата обновления: 14 октября 2025